Quelle que la complexité du projet, de l'étude technique d'une découpe particulière ou d'une forme originale à la conception d'un plafond de grande longueur aux contraintes multiples, Le bureau d'études Diamond met au service de toutes les imaginations un savoir-faire technologique de plus de 85 ans
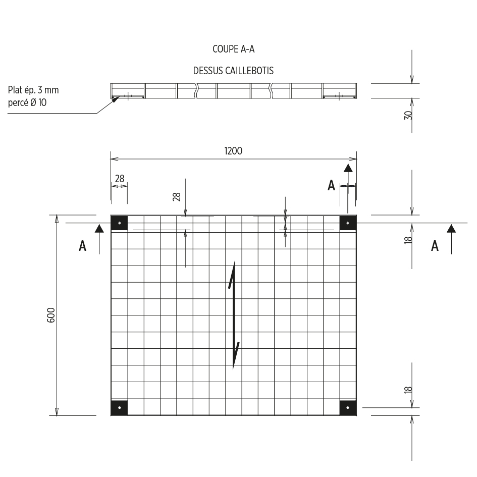
Adaptation du panneau
Caillebotis routes & autoroutes
Caillebotis rayonnant
Grilles d’arbres
Grille de fontaines
Grilles de caniveau
Faux-plafonds
Rayonnage
Gardes-corps et clôtures
Échelles à crinoline en industrie chimique
Garde-corps en industrie chimique
En fonction des spécificités du projet, et notamment lorsque l’étude amène à la conception de pièces originales comme des cornières, des trappes de visite, des pattes de fixation, des charnières, des paumelles, des poignées, etc, le bureau d’études Diamond cherche toujours à concevoir le produit le plus adapté à l’exigence fonctionnelle et esthétique.
Toutes ces études se font dans le respect du cahier des charges préalablement établi.
Exemple d'exécution de pattes de fixation